Unit 1: Jij kan alles maken.

Naar aanmeldformulier

Maakunit.

De vraag naar werkplaatsen voor de (lichte) maakindustrie is groot, daarom richten we de units als werkplaatsen die geschikt zijn voor productiedoeleinden. Zo kunnen hier zich meerdere kleinschalige productiebedrijven vestigen, zoals toeleveranciers voor technologische industrie en automotive, meubelmakers, kledingontwerpers, kunstenaars, zonnepaneelontwerpers, 3D-printbedrijven, drukkers, fietsenmakers, etc.

De maakunits zijn op de begane grond zijn tweelaags, wat een werkplaats met opslag of eigen aanvullende kantoorruimte goed mogelijk maakt. De afwerking van de ruimtes faciliteren de productie: De indeling is goed, alles is brandschoon, er liggen strakke harde vloeren in en er is krachtstroom aansluiting is voor de productie-instrumenten.

Als koper heb je de optie om, in tegenstelling tot bij veel vergelijkbare projecten, jouw maakunit al bij de bouw te laten aankleden tot een comfortabele casco-plus ruimte. Je krijgt dan onder andere koeling, verwarming en sanitaire voorzieningen. Kom je bij ons huren, dan zitten deze voorzieningen er standaard al in om jouw start zo soepel mogelijk te maken.

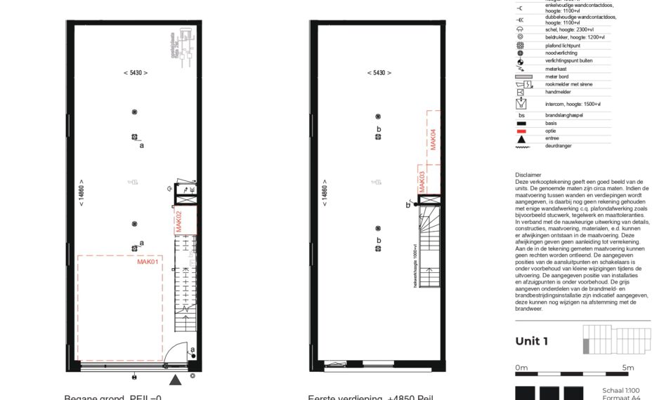
Plattegronden.

In het kort:

  • Unitnummer : 1
  • Soort unit : Maakunit
  • BVO unit : circa 183 m²
  • BVO totaal : circa 195 m²
  • Aantal verdiepingen : 2
  • Stallingsplaats : 1
naar boven