Unit 22: Hier kun je ontspannen werken.

Naar aanmeldformulier

Creatief werken en genieten.

Een kantoor binnen FLEX is jouw eigen afgesloten ruimte waarmee jij deel uitmaakt van een groter geheel. Namelijk een community van allerlei verschillende gave ondernemers en bedrijven. Neem vooral jouw eigen meubilair mee, want dat zorgt voor variatie en inspiratie! Ga jij voor creatief en kleurrijk of toch voor strak en modern?

Ogen komen tekort wanneer je door de gangen loopt vol glazen kantoor- en vergaderruimtes, kunst, planten en gezellige zithoekjes. Genoeg inspirerende plekjes voor jouw creativiteit.

Als koper heb je de optie om, in tegenstelling tot bij veel vergelijkbare projecten, jouw maakunit al bij de bouw te laten aankleden tot een comfortabele casco-plus ruimte. Je krijgt dan onder andere koeling, verwarming en sanitaire voorzieningen.

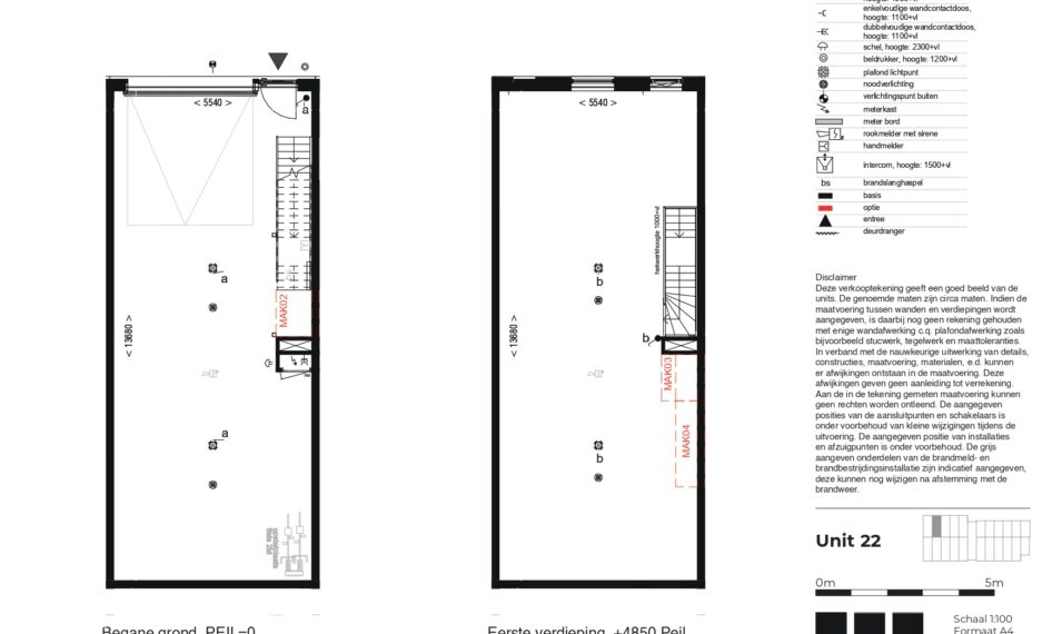
Plattegronden.

In het kort:

  • Unitnummer : 22
  • Soort unit : Maakunit
  • BVO-unit : circa 163 m²
  • BVO totaal : circa 174 m²
  • Aantal Verdiepingen : 2
  • Stallingsplaats : 1
naar boven